One bedroom apartment, Sale, v Novom Meste, Bratislava
The best prices for new buildings in Bratislava! 2-room approved apartments from 164,000,- Euros! Available immediately.
We offer for sale apartments and apartments in the multifunctional Diamant house, which can provide urban living in a modern new building with civic amenities.
The building has 8 floors with an exclusive part of the interior, where there is a generously designed atrium with a communication space and greenery.
We offer you apartments and apartments (non-residential premises), which are located on floors 2 to 7.
On the first floor there are spaces for civic amenities - shops and services.
The building offers 140 parking spaces in two underground floors and 20 parking spaces on the surface of the terrain.
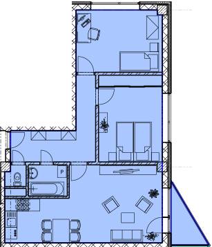
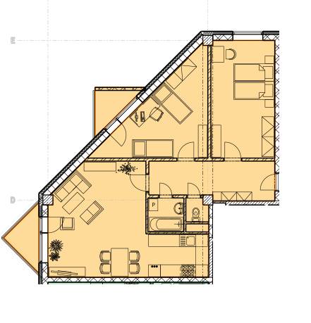
The Diamant complex is designed for individuals as well as families with children. It offers 2- and 3-room apartment units with areas from 46m2 to 87m2. Each apartment has its own balcony, where you can relax with a cup of coffee in the morning or a glass of wine on a warm summer evening. For barbecue lovers, the apartments on the 2nd floor with terraces of up to 25 m2 are perfect.
You will also be surprised and delighted by the cellars of the apartments, which are located on each floor. There are 2 passenger and 2 freight elevators.
The apartment building also includes a relaxation and rest area. There is a children's playground, but also a lot of rest areas and greenery, where especially the elderly will come to their senses. The surroundings of the house provide many options for spending your free time. The Carpathians and vineyards are within walking distance.
Diamant is located at the intersection of Rybničná and Na Pántoch streets, in the Bratislava - Vajnory district. The given location offers convenient access to the city, quick connection to the highway bypass, plenty of greenery with a view of the Small Carpathians, Vajnorské Lake, complete civic amenities and shopping centers in the vicinity.
The apartments are oriented to Rybničná Street. Apartments to the rear of the building to the parking lot. We offer them either in standard or as semi-detached houses. They have pre-preparation for air conditioning.
It is possible to establish permanent residence in the apartments and draw on a loan. They are cheaper than apartments.
We offer:
2-room apartment: 46.9 m2 + balcony 3.6 m2 + cellar 5 m2 (apartments and apartments have the same area), apartments (semi-detached houses) are priced from 164,000 E, apartments (semi-detached houses) are priced from 174,000 E to 200,000 E (in standard)
3-room apartment. : 69.1m2 + balcony 3m2 + cellar 5m2 (each bare apartment), from 270,000E
3-room apartment: 86.5m2 + balcony 6.2m2 + cellar 5m2 (each bare apartment-apartment)), from 260,000E
Most apartments are bare apartments. Some are standard: floating floors, bathroom. The higher the floor, the higher the price.
We will send a price list of available 2-room and 3-room apartments, apartments or commercial premises upon request.
A parking space in the garage costs 17,100,-Eur.
If you are looking for apartments, non-residential premises in the outskirts of Bratislava, we have an offer for you.
For more information, write us an email at kluc@kluc.sk or respond to this advertisement via the portal.
Use the services of a reliable real estate agency that has been on the market for over 24 years! We also offer other real estate-related services: engineering, home staging, interior design consulting, architect, appraiser, mortgage advisor and lawyer services.
Use comprehensive real estate services! You can also find more information on our website kluc.sk.
Listing summary
Property location
Bratislava - Nové Mesto, Slovakia




